Ответвительная анкерная одноцепная опора АО23

Чертеж изделия:

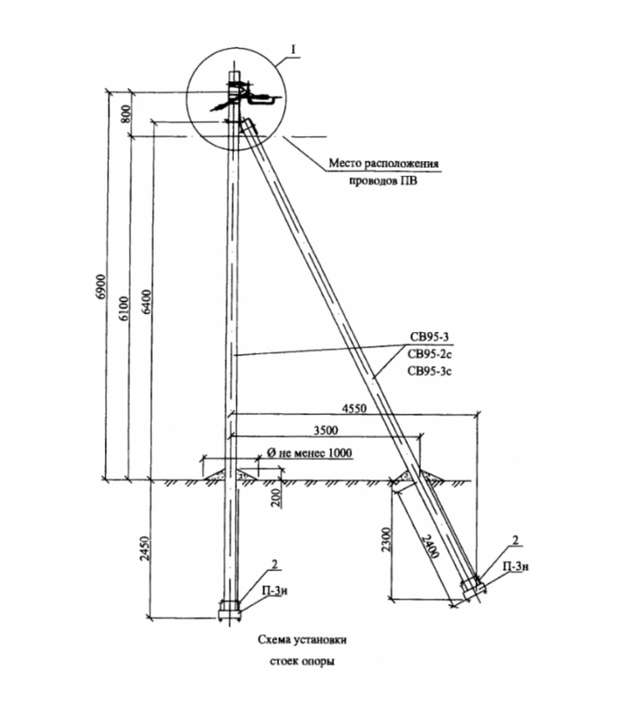
Краткая информация

Ответвительная анкерная двухцепная опора АО 23 состоит из стойки СВ 95 и анкерной плиты П 3 и, а также стальных конструкций(траверс,хомута, кронштейна, стяжки, проводника).  Опора АО 23– это железобетонная вибрированная опора, на которой расположена одна трехфазная линия. Опора применяется при установке  сетей ВЛ 10 кВ. Опора имеет ответвительное значение, то есть опора оформляет изменение направления сети ЛЭП. Опоры ответвительные АО 23 предназначены для установки устройств ответвления от магистрали ВЛ. Унифицированные ответвительные опоры ВЛ служат для восприятия в обычном режиме работы усилия от разности натяжения проводов, направленные как вдоль ВЛ, так и в другие направления. При установке опор АО 23 принимаются во внимание климатические условия и особенности эксплуатации.

При обычном уровне эксплуатации анкерные концевые опоры воспринимают одностороннюю продольную нагрузку натяжения тросов и проводов. Опоры железобетонные ЛЭП предназначены для использования в районах с ветровыми показателями I-II. Расчетные температуры для использования анкерных опор принимаются до -40°С. Для эксплуатации в северных широтах, где температура может, опускается ниже сорокоградусной отметки, опоры изготавливаются по заказу, учитывая особенность климатических условий. Опоры АО 23 предназначены для использования в неагрессивных  районах . Для эксплуатации в агрессивных средах опоры анкерные предварительно защищают специальными веществами. Защитное покрытие наносится на 3 метра от нижнего конца изделия. Опоры АО 23 выдерживают монтажные усилия при натяжке трех проводов. Все изделия от компании «Бетондеталь» проходят жесткий контроль качества и соответствуют всем стандартам и нормам ГОСТ.

Производство

Материалом для изготовления анкерных опор служит тяжелый бетон вибрированный. Бетон для опор обладает низкой водонепроницаемости W8. Морозостойкость опор для различных климатических условий F150-F200. Высококачественный бетон, используемый в процессе производства опор АО 23 устойчив к воздействию окружающей среды и химических веществ. Бетон имеет свойства устойчивости к коррозии и ветровым нагрузкам.

Изделия армируются стальным каркасом изготовленный из стрежневой арматуры диаметра 12-20 мм. Арматура выполняется из предварительно напряженной стали высокого класса  (АIV, A-V). Электрическое сопротивление между арматурой и закладными деталями не должно быть менее 10000 Ом. Абсолютно все металлические детали концевых опор предварительно обрабатываются антикоррозийными веществами. Железобетонные опоры АО 23 - это высококачественное изделия, которое, при соблюдении всех технологических норм, способно прослужить не один десяток лет. 

Маркировка изделия

Маркировка опор АО 23 представляет собой цифробуквенный набор, который включает в себе условные обозначения наименования изделия, цифровой индекс, указывающий на напряжение ВЛ и типоразмер. Также дополнительно может  указываться порядковый номер железобетонного ригеля по несущей способности.

Например, рассмотрим анкерные опоры АО 23, где:

«АО»- ответвительная анкерная опора;

Цифра «23» - класс напряжения.

Хранение и транспортировка опор

Хранение опор АО 23 осуществляется в горизонтальном положении, штабелями. Высота одного штабеля изделия не должна превышать более 5 изделий в стопке, для предотвращения опасности падения или деформации изделия. Стойки анкерные укладывают таким образом, что бы закладные изделия ни соприкасались, а изделия для крепления траверс располагались вертикально. Нижний ряд стоек располагается на прокладки специальной формы, а следующие ряды размещаются на деревянных прокладках.