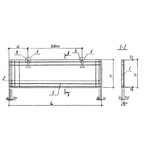
ПГ 58.15 панели перегородки
Характеристики изделия:
| Параметр | Значение |
|---|---|
| длина | 5760 мм |
| ширина | 80 мм |
| высота | 1485 мм |
| масса | 850 кг |
| нормативный документ | Серия 1.030.9-2 |
Цена:
Рассчитать стоимостьПГ 58.15 Перегородки панельные зданий промышленных и сельскохозяйстыенных предприятий Серия 1.030.9-2.
