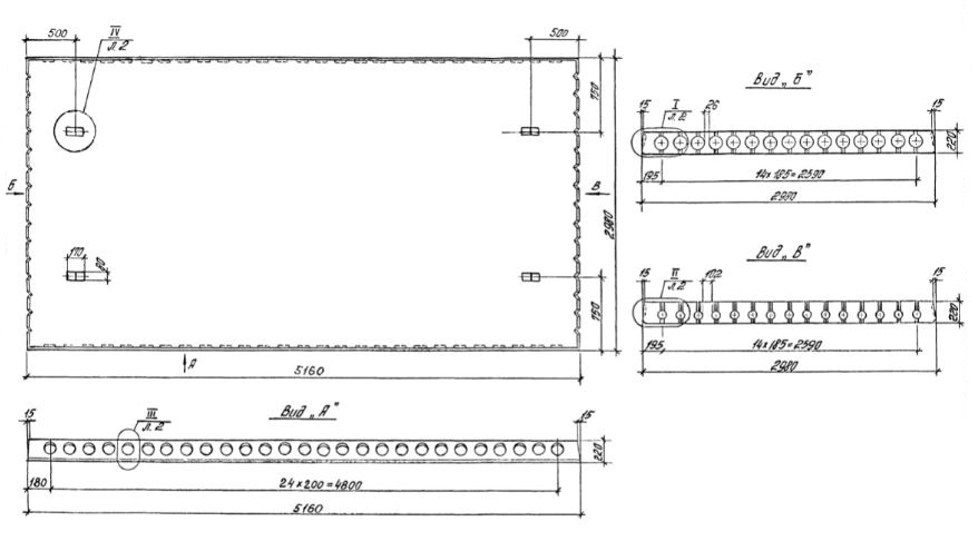
ПК 52.30 плиты рядовые

Чертеж изделия:
Характеристики изделия:
ПараметрЗначение
длина5160 мм
ширина2980 мм
высота220 мм
масса4700 кг
нормативный документСерия 1.041.1-3

ПК 52.30  Плиты рядовые Серия 1.041.1-3.