ПК 30.18

Чертеж изделия:
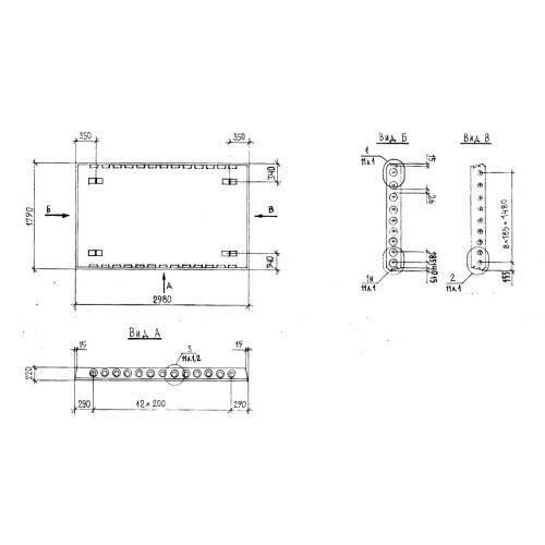
Характеристики изделия:
ПараметрЗначение
длина2980 мм
ширина1790 мм
высота220 мм
вес1725 кг
серия1.141.1 КЛ-3

ПК 30.18 Плита перекрытия с круглыми пустотами по серии 1.141.1 КЛ-3.