1ЛП 24.12

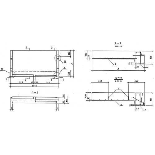
Чертеж изделия:
Характеристики изделия:
ПараметрЗначение
длина2380 мм
ширина1300 мм
высота320 мм
масса1590 кг
нормативный документСерия 1.152.1-8

1ЛП 24.12  Лестничные площадки плоские Серия 1.152.1-8.