ЛМР 58.12.14

Чертеж изделия:
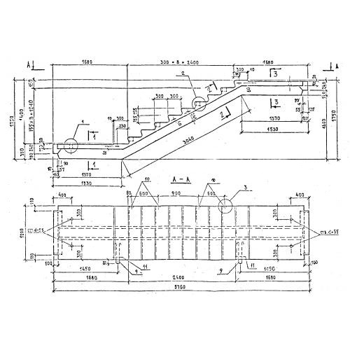
Характеристики изделия:
ПараметрЗначение
длина5760 мм
ширина1200 мм
высота1750 мм
масса2775 кг
нормаивный документСерия 1.258 КЛ-2

ЛМР 58.12.14  Лестничные марш-площадки Серия 1.258 КЛ-2.