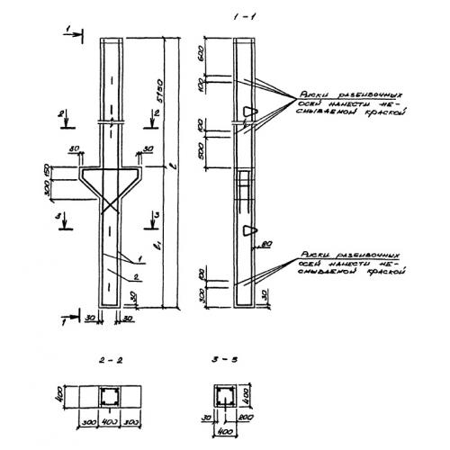
СД 100
Характеристики изделия:
| Параметр | Значение |
|---|---|
| длина | 10000 мм |
| ширина | 1000 мм |
| высота | 400 мм |
| вес | 4200 кг |
| серия | 1.411.1-10.93 |
Цена:
Рассчитать стоимостьСД 100 Сваи двухконсольные по серии 1.411.1-10.93.
| Параметр | Значение |
|---|---|
| длина | 10000 мм |
| ширина | 1000 мм |
| высота | 400 мм |
| вес | 4200 кг |
| серия | 1.411.1-10.93 |
СД 100 Сваи двухконсольные по серии 1.411.1-10.93.
