К 19

Чертеж изделия:
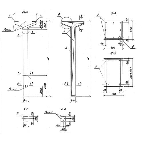
Характеристики изделия:
ПараметрЗначение
длина6200 мм
ширина2400 мм
высота2400 мм
масса3500 кг
нормативный документСерия 3.015-16.94

К 19  Колонны бетонные Серия 3.015-16.94.