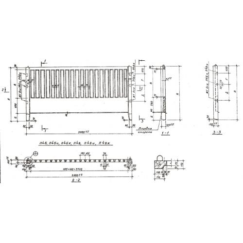
П 4 панель ограждения

Чертеж изделия:
Характеристики изделия:
ПараметрЗначение
длина3980 мм
ширина120 мм
высота2500 мм
масса1000 кг
нормативный документСерия 3.017-1

П 4 Панели оград Серия 3.017-1.