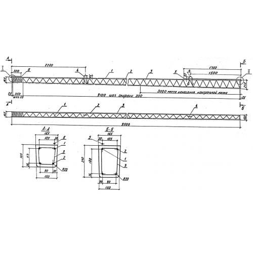
СВ 95-1а
Характеристики изделия:
| Параметр | Значение |
|---|---|
| длина | 9500 мм |
| ширина | 165 мм |
| высота | 240 мм |
| масса | 750 кг |
| нормативный документ | Серия 3.407.1-136 |
Цена:
Рассчитать стоимостьСВ 95-1 а Стойки вибрированные железобетонные для опор ЛЭП, Серия 3.407.1-136.
