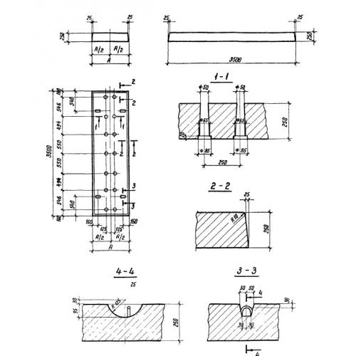
ПФ 35.15

Чертеж изделия:
Характеристики изделия:
ПараметрЗначение
длина3500 мм
ширина1500 мм
высота250 мм
вес3280 кг
серия3.407.1-148

ПФ 35.15 Плиты фундаментные по серии 3.407.1-148.