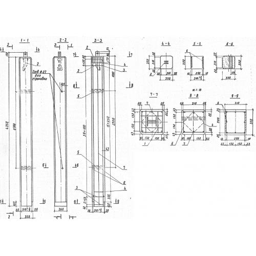
СА 4.5

Чертеж изделия:
Характеристики изделия:
ПараметрЗначение
длина4350 мм
ширина350 мм
высота350 мм
вес1330 кг
серия3.501.1-149

СА 4.5 Стойки анкера по серии 3.501.1-149.