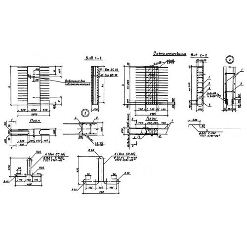
БС 60.10 блок стенки

Чертеж изделия:
Характеристики изделия:
ПараметрЗначение
длина6000 мм
ширина1000 мм
высота500 мм
вес6650 кг
нормативный документСерия 3.503.1-94

БС 60.10 Блоки стенок по Серии 3.503.1-94.