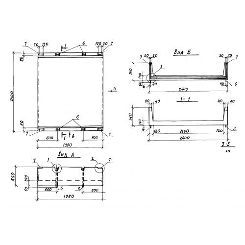
ЛК 198.240.54

Чертеж изделия:
Характеристики изделия:
ПараметрЗначение
длина1980 мм
ширина2400 мм
высота540 мм
вес2070 кг
серия3.818.9-2

ЛК 198.240.54 Лотки для каналов навозоудаления по серии 3.818.9-2.