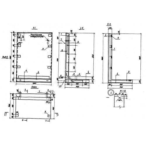
ОГ-28

Чертеж изделия:
Характеристики изделия:
ПараметрЗначение
длина2000 мм
ширина1400 мм
высота2800 мм
масса3875 кг
нормативный документСерия 3.820-6

ОГ-28   Открылки Г-образные портального оголовка по Серии 3.820-6.