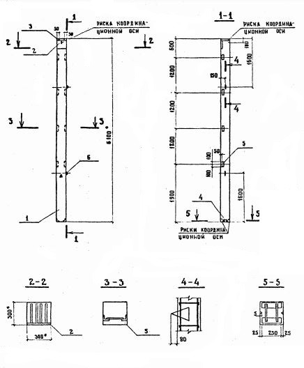
КФ 61

Чертеж изделия:
Характеристики изделия:
ПараметрЗначение
длина6100 мм
ширина300 мм
высота300 мм
вес1400 кг
серияТП 503-7-13.88

КФ 61 Колонны по проекту ТП 503-7-13.88.