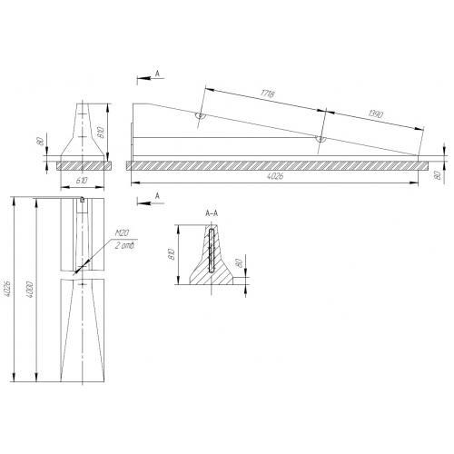
12 ДД
Характеристики изделия:
| Параметр | Значение |
|---|---|
| длина | 4026 мм |
| ширина | 610 мм |
| высота | 810 мм |
| масса | 4000 кг |
| нормативный документ | ТУ 5899-002-61548960-2010 |
Цена:
Рассчитать стоимость12 ДД Концевые блоки парапетного двухстороннего стационарного ограждения по ТУ 5899-002-61548960-2010.
